Page 252 - سابقة أعمال ايجي ريفيت السكني
P. 252

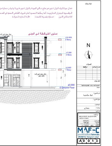
+10.500                             +10.500
 3 Story                             3 Story
                                                N

 +7.200                              +7.200
 2 Story                             2 Story


 +3.900                              +3.900
 1 Story                             1 Story



 ±0.000                               ±0.000
 0 Ground Floor                   0 Ground Floor




 MAIN WEST ELEVATION WITHOUT FENCE

                                            MAIN WEST ELEVATION
                                             WITH FENCE
                                                   A 3



                                            A 0   0  1  3
   247   248   249   250   251   252   253   254   255   256   257