Page 595 - سابقة أعمال ايجي ريفيت السكني
P. 595
INCOMING SERVICE
ENTRANCE CABLE
FROM SCECO
ST 20.00 m
West Elevation Without fence
West Elevation
M
2 1
MDB
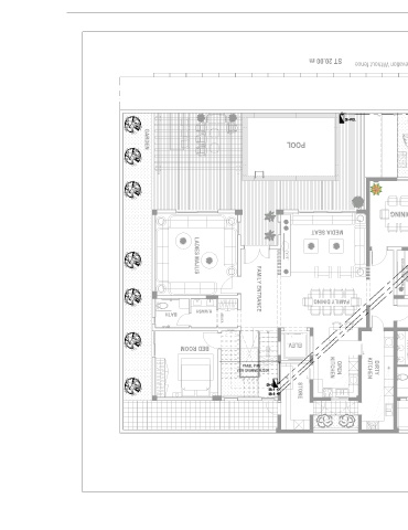
GARDEN
POOL
GARDEN
CAR PORT
GUEST DINING
BUFFET
MEDIA SEAT
2 SEAT 1 GARDEN South Elevation
2 1
TV 70"
LADIES MAJLIS
GENTLES ENTRANCE
ENTRANCE
DECORATIVE TABLE
FAMILY ENTRANCE
H.WASH
BATH
ABAYA
DOWN
DOWN UP UP FAMILY DINING PORTRAIT GENTLES MAJLIS
25 25 2 2 ST 15.00 m
24 24 3 3
23 23 4 4 ELEV.
22 22 5 5 H.WASH
BED ROOM
21 21 6 6 23G x 0.28 23G x 0.28 24R x 0.16 24R x 0.16
20 20 7 7
19 19 8 8
18 PANEL PIPE 9 9 KITCHEN OPEN KITCHEN DIRTY
18
17 FOR GROUND FLOOR
17
10
10
16 16 11 11
15 15 14 14 13 13 12 12 STORE BATH GARDEN
A 3
E 0 1 4

