Page 601 - سابقة أعمال ايجي ريفيت السكني
P. 601
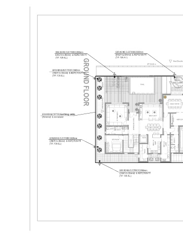
EARTHING LEGEND :
GROUNDING ELECTRODE
(3000mm LENGTH & 20mmd)
& INSPECTION PIT
GROUNDING Triangle
ELECTRODE(3000mm LENGTH & 20mmd)
INSPECTION PIT
GROUNDING/COPPER/
Earthing cable (25mmmd)
& non isolated
GROUNDING Triangle
ELECTRODE(3000mm LENGTH & 20mmd)
& INSPECTION PIT
TR
GROUNDING ELECTRODE(3000mm GROUNDING ELECTRODE(3000mm electric (TYP. FOR ALL)
LENGTH & 20mmd) & INSPECTION PIT LENGTH & 20mmd) & INSPECTION PIT
(TYP. FOR ALL) (TYP. FOR ALL)
INCOMING SERVICE
West Elevation ENTRANCE CABLE
FROM SCECO
ST 20.00 m
GROUNDING ELECTRODE(3000mm
GROUNDING ELECTRODE(3000mm LENGTH & 20mmd) & INSPECTION PIT
LENGTH & 20mmd) & INSPECTION PIT M (TYP. FOR ALL)
(TYP. FOR ALL)
GARDEN
MDB
West Elevation Without Fence
POOL
CAR PORT
GARDEN
GUEST DINING BUFFET GARDEN North Elevation Without Fence North Elevation
GROUND FLOOR
SEAT
South Elevation
GROUNDING/COPPER/ Earthing cable TV 70" MEDIA SEAT
(25mmmd) & non isolated LADIES MAJLIS GROUNDING/COPPER/ Earthing cable
GENTLES ENTRANCE (25mmmd) & non isolated
ENTRANCE
DECORATIVE TABLE
W FAMILY ENTRANCE FAMILY DINING
BATH ABAYA PORTRAIT
H.WASH
GENTLES MAJLIS
DOWN DOWN
25 25 2 2 UP UP 312.692 m 2 GARDEN ST 15.00 m
GROUNDING ELECTRODE(3000mm BED ROOM 24 24 23 23 22 22 3 3 4 4 5 5 ELEV. GROUNDING ELECTRODE(3000mm
LENGTH & 20mmd) & INSPECTION PIT 21 21 6 6 23G x 0.28 23G x 0.28 24R x 0.16 24R x 0.16 H.WASH
20 20 7 7 LENGTH & 20mmd) & INSPECTION PIT
(TYP. FOR ALL) 19 19 8 8 KITCHEN OPEN
18 18 9 9 KITCHEN DIRTY (TYP. FOR ALL)
17 17 10 10
16 16 11 11
15 15 14 14 13 13 12 12 STORE BATH 69% N
GROUNDING ELECTRODE(3000mm GROUNDING ELECTRODE(3000mm
LENGTH & 20mmd) & INSPECTION PIT LENGTH & 20mmd) & INSPECTION PIT
(TYP. FOR ALL) (TYP. FOR ALL)
A 3
E 0 1 7

