Page 820 - سابقة أعمال ايجي ريفيت السكني
P. 820
SPOT LIGHT 26W LED LAMP SURFACE MOUNTED,
CIRCULAR LUMINARIES, IP 23 (سبوت 2سوات)
GLOB FOR USE IN BATHROOMS 1X24W LED LAMP
, IP 44 (سبو2تح2ابا22اوات)
LUMINARIES FOR MIRROR IN BATHROOMS 18W
LED LAMP, IP 44 (سبوف 2ابا2اب2فمبوا2ةبات)
Wall Mounted outdoor lamp LED - WP - IP54-36W
(سبوج فموتاب2اابوااا2اوبلا22لتوبا2ةبات)
OUTLET LIGHTING , 300 WATT
(سبوج 2فةت32تواا)
SPOT LIGHT 2X20W LED LAMP Wall MOUNTED,
(سبو2ت كت2استا2ةبات)
Outlet 18W LED LAMP Wall MOUNTED
(سبوف 2فووتاب2تواا)
Outlet 20W LED LAMP Ceiling
(سبوت 2فمبا 2تواا)
LED LINE STRIPLIGHT 18W,
(ووتم 2 ما2يموا)
Ceiling MOUNTED LUMINAIRE-LED LAMP 26 WATT, IP54
(سبوت 2فمتوبااب2فاباباا2ةلت2ةبات2تواا)
Ceiling MOUNTED LUMINAIRE-LED LAMP 26 WATT, IP54
(سبوت 2ااباتاب2فابابا2ةلت2ةبات2تواا)
WALL Luminaire outdoor lamp LED - WP - IP54-36W
(سبوج فموتاب2اابوااا2اوبلا2ماوب2لتوبا2ةبات)
WALL MOUNTED OUTDOOR LUMINAIRE
W.P -LED LAMP 26 WATT, IP54
(سبوت فموتاب2اابوااا2اوبلا2ةووابا2مبا2لتوبا2ةبات)
DOWN LIGHT 2X18W LED LAMP SURFACE MOUNTED,
CIRCULAR LUMINARIES, IP 23
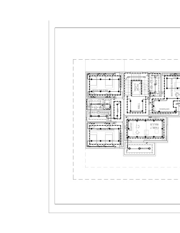
F- L/1
SS- L/2 F- L/4 Floor Luminaire outdoor lamp LED - WP - IP54-36W
(سبوج فموتاب2اابوااا2اوبلا2ماوب2لتوبا2ةبات)
SS- L/1 11 ONE GANG ONE-WAY SWITCH (16A)
16 15 14 13 12 10
9
17
SS- L/3 8 BATH ONE GANG ONE-WAY SWITCH (16A)
OPEN TO BELOW 7 6 5 24R x 0.16 23G x 0.28 MASTER BED ROOM ONE GANG TWO-WAY SWITCH (16A)
18
19
20
21
22
MALE BED ROOM
3 4 F- L/3 DISTRIBUTION PANEL BOARD
23
24
2
UP MAIN DISTRIBUTION PANEL BOARD
25
F- L/6 MDB
DOWN
F- L/2
F- L/3
F- L/7
HALL
BATH
DIST. ENTRANCE BALCONY
LAUNDARY
BUFFET FAMILY
F- L/8 TV 70" MAJLIS
FEMALE BED ROOM
F- L/5
FIRST FLOOR A 3
BALCONY
E 0 0 3

