Page 997 - سابقة أعمال ايجي ريفيت السكني
P. 997

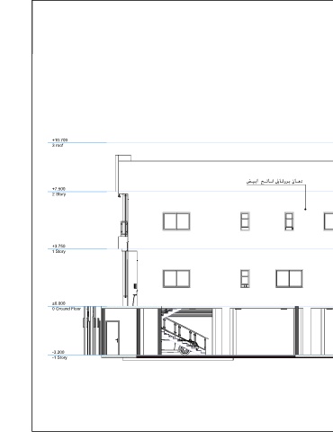
+10.700                                                                               +10.700
           3 roof                                                                                 3 roof


           +7.500                                                                                +7.500
           2 Story                                                                               2 Story




           +3.750                                                                                +3.750
           1 Story                                                                               1 Story



           ±0.000                                                                                 ±0.000
           0 Ground Floor                                                                      0 Ground Floor



           -3.200                                                                                 -3.200
           -1 Story                                                                              -1 Story
                                                                                                                A 3



                                                                                                          A 0   1   1
   992   993   994   995   996   997   998   999   1000   1001   1002