Page 17 - 3332 Collingwood Street V13
P. 17
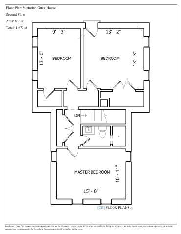
Floor Plan: Victorian Guest House
Second Floor
Area: 836 sf
Total: 1,672 sf
[CB] FLOOR PLANS
©
Disclaimer: Floor Plan measurements are approximate and are for illustrative purposes only. While we do not doubt the floor plans accuracy, we make no guarantee, warranty or representation as to the
accuracy and completeness to the floor plans. Measurements should be verified by the buyer.

