Page 16 - Demo
P. 16

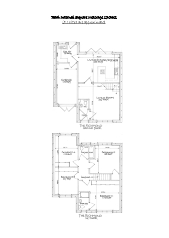
Total Internal Square Meterage 175m2
(all sizes are approximate)
    
































































































   14   15   16   17   18