Page 39 - E-modul REKAYASAPONDASI II
        P. 39
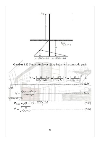
     Gambar 2.10 Turap cantilever ujung bebas tertanam pada pasir
                                                                     2
                                          2
                            4
                             − [   8    ]    − [  12      ]    − [  2    ] = 0
                                  (      −      )    (      −      )    (      −      )
          .............................................................................................................. (2.36)
        Dan
                           2
                    (      −      )   −2  
                =               ....................................................................... (2.37)
               5
                    2  (    −      )  
        Selanjutnya,
                                  3
                                     (      −      )
                            ′
                       =   (   +    ) −  6   ...................................................... (2.38)
              1
            2 = √     2     ................................................................................ (2.39)
                     (      −      )
                                          23
     	
