Page 39 - E-modul Muhammad Aswan_2025_OKTOBER 031025
P. 39
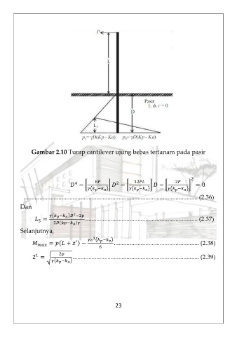
Gambar 2.10 Turap cantilever ujung bebas tertanam pada pasir
2
2
4
− [ 8 ] − [ 12 ] − [ 2 ] = 0
( − ) ( − ) ( − )
.............................................................................................................. (2.36)
Dan
2
( − ) −2
= ....................................................................... (2.37)
5
2 ( − )
Selanjutnya,
3
( − )
′
= ( + ) − 6 ...................................................... (2.38)
1
2 = √ 2 ................................................................................ (2.39)
( − )
23

