Page 46 - ALLOY Technical Detail V.2025-2
P. 46
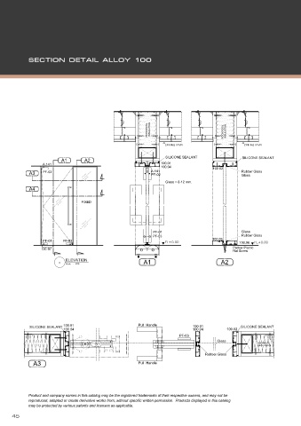
ROCKWOOL INSULATION ROCKWOOL INSULATION
CEILING LEVEL CEILING LEVEL
SILICONE SEALANT SILICONE SEALANT
A1 A2
A.141 100.01
100.04 100.02
A3 PF-02 A.141 Rubber Glass
PF-02
Glass
Glass = 8-12 mm.
A4
FIXED
PF-01 Glass
PF-03 Rubber Glass
PF-01 PF-03 100.05
100.06
DC-07 Packer Plactic
Flat Screw
- ELEVATION A1 A2
Scale : NTS
SILICONE SEALANT 100.01 Pull Handle 100.01 SILICONE SEALANT
100.04 100.04 100.02
PF-03
Glass
ROCKWOOL
INSULATION
Rubber Glass
A3 Pull Handle

