Page 41 - ALLOY Technical Detail V.2025-2
P. 41
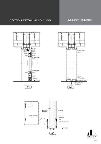
ROCKWOOL INSULATION ROCKWOOL INSULATION
CEILING LEVEL CEILING LEVEL
100.02
100.07 60.06 100.02 Rubber Glass
(A.01) (A.01)
60.03R 60.03P Glass
60.02 60.02
Rubber Glass
Glass
Rubber Glass
60.02 60.02
60.04
Glass
(DS200 ) Rubber Glass
100.05
100.06
Packer Plactic
Flat Screw
A1 A2
A.14
Outside Inside
100.10 (100 mm.)
Flat Screw
A.14
100.10 (100 mm.)
150.0
A3

