Page 40 - ALLOY Technical Detail V.2025-2
P. 40
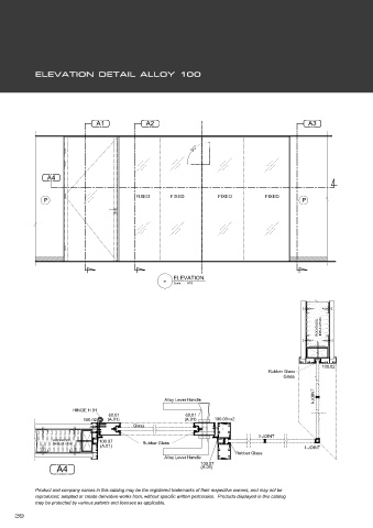
A1 A2 A3
A4
FIXED FIXED FIXED FIXED
P P
- ELEVATION
Scale : NTS
ROCKWOOL INSULATION
100.02
Rubber Glass
Glass
I-JOINT
Alloy Lever Handle
HINGE H.01
60.01 60.01
100.02 (A.01) (A.01) 100.03=x2
Glass
I-JOINT
ROCKWOOL 100.07
INSULATION Rubber Glass
(A.01) I-JOINT
Rubber Glass
Alloy Lever Handle
100.07
A4 (A.01)

