Page 37 - ALLOY Technical Detail V.2025-2
P. 37
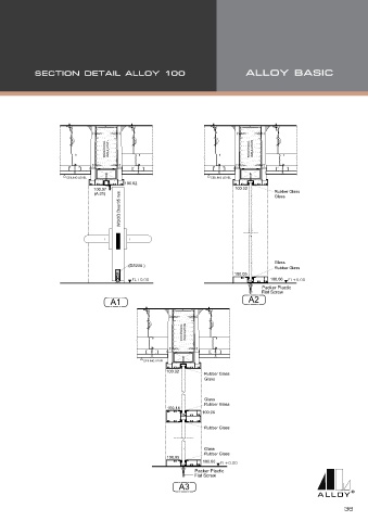
ROCKWOOL INSULATION ROCKWOOL INSULATION
CEILING LEVEL CEILING LEVEL
100.02
100.07 100.02
WOOD Door35 mm.
(A.01) Rubber Glass
Glass
Glass
(DS200 )
Rubber Glass
100.05
100.06
Packer Plactic
Flat Screw
A1 A2
ROCKWOOL INSULATION
CEILING LEVEL
100.02
Rubber Glass
Glass
Glass
Rubber Glass
100.14
100.06
Rubber Glass
Glass
Rubber Glass
100.05
100.06
Packer Plactic
Flat Screw
A3

