Page 38 - ALLOY Technical Detail V.2025-2
P. 38
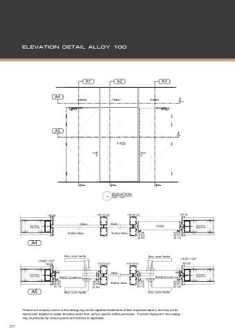
A1 A2 A3
A4
FIXED FIXED FIXED
A5
FIXED
- ELEVATION
Scale : NTS
100.02 100.03=x2 100.03=x2 100.02
Glass Glass
ROCKWOOL FIXED ROCKWOOL
INSULATION INSULATION
Rubber Glass Rubber Glass 40.0A 40.0A
(A.01) (A.01)
(A.14) (A.14)
A4
Alloy Lever Handle Alloy Lever Handle
HINGE H.02P HINGE H.02P
100.02 100.03=x2 100.03=x2 100.02
Glass
ROCKWOOL ROCKWOOL
INSULATION WOOD Door45 mm. WOOD Door45 mm. INSULATION
40.0A 40.0A 40.0A 40.0A
(A.01) (A.01) Rubber Glass (A.01) (A.01)
(A.14) (A.14) (A.14) (A.14)
A5 Alloy Lever Handle Alloy Lever Handle

