Page 39 - ALLOY Technical Detail V.2025-2
P. 39
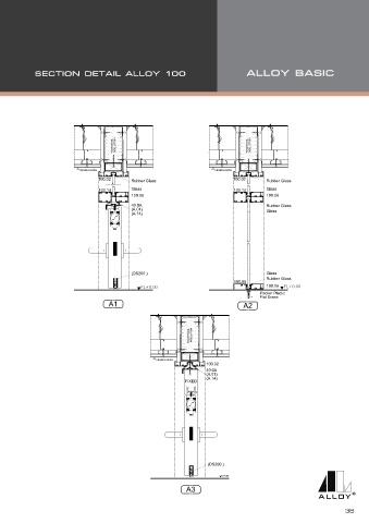
ROCKWOOL INSULATION ROCKWOOL INSULATION
CEILING LEVEL CEILING LEVEL
100.02 Rubber Glass 100.02 Rubber Glass
100.14 Glass 100.14 Glass
100.06 100.06
40.0A Rubber Glass
(A.01) Glass
(A.14)
(DS200 ) Glass
Rubber Glass
100.05
100.06
Packer Plactic
Flat Screw
A1 A2
ROCKWOOL INSULATION
CEILING LEVEL
100.02
40.0A
(A.01)
(A.14)
FIXED
(DS200 )
A3

