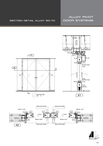
Page 53 - ALLOY Technical Detail V.2025-2
P. 53
ROCKWOOL INSULATION
CEILING LEVEL
100.02
80.08
A1 (A.01) (A.01)
70.07
70.04 DC-02
70.02 70.02
Rubber Glass
Glass
A2
P P
Glass
Rubber Glass
70.02 70.02
70.04
(DS200 )
- ELEVATION A1
Scale : NTS
Alloy Lever Handle Alloy Lever Handle
HINGE H.02P HINGE H.02P
(A.01) (A.01) (A.01) (A.01)
100.02 70.01 70.01 70.01 70.01 100.02
Glass Glass
ROCKWOOL ROCKWOOL
INSULATION 80.08 Rubber Glass Rubber Glass 80.08 INSULATION
(A.01) (A.01)
A2 Alloy Lever Handle Alloy Lever Handle

