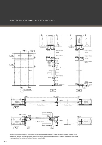
Page 58 - ALLOY Technical Detail V.2025-2
P. 58
ROCKWOOL INSULATION ROCKWOOL INSULATION
CEILING LEVEL CEILING LEVEL
A1 A2 100.02 Rubber Glass 100.02 Rubber Glass
Glass Glass
A3 FIXED FIXED Rubber Glass Rubber Glass
100.14 100.14
100.06 100.06
100.07 60.06
(A.01) (A.01) Rubber Glass
Glass
A4 60.03R 60.03P
60.02 60.02
Rubber Glass
Glass
FIXED
Rubber Glass
60.02 60.02
60.04 Glass
60.04
Rubber Glass
(A.01) 100.05 100.06
60.06
Packer Plactic
Flat Screw
- ELEVATION A1 A2
Scale : NTS
100.02 100.03=x2 100.02
Glass Glass
ROCKWOOL ROCKWOOL
INSULATION INSULATION
Rubber Glass Rubber Glass
A3
Alloy Lever Handle
HINGE H.01 60.01
100.02 60.01 (A.01) 100.03=x2 100.02
(A.01)
Glass
Glass
ROCKWOOL ROCKWOOL
INSULATION Rubber Glass INSULATION
Rubber Glass
Alloy Lever Handle
A4 100.07 100.07
(A.01)
(A.01)

