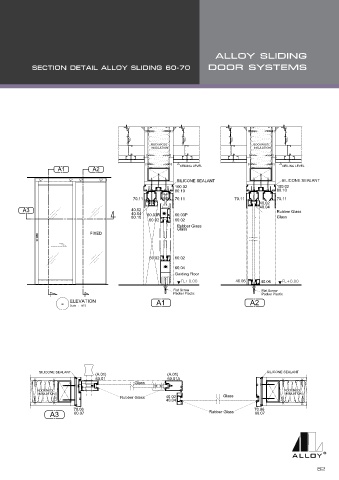
Page 63 - ALLOY Technical Detail V.2025-2
P. 63
ROCKWOOL ROCKWOOL
INSULATION INSULATION
A1 A2 CEILING LEVEL CEILING LEVEL
SILICONE SEALANT SILICONE SEALANT
100.02 100.02
80.10 80.10
70.11 70.11 70.11 70.11
40.02
A3 40.02 40.04 Rubber Glass
40.04 60.03R 60.03P
80.10 Glass
60.02 60.02
Rubber Glass
Glass
FIXED
FH-01
60.02 60.02
60.04
Guiding Floor
40.05 40.06
Flat Screw Flat Screw
Packer Plactic Packer Plactic
- ELEVATION A1 A2
Scale : NTS
SILICONE SEALANT (A.01) (A.01) SILICONE SEALANT
60.01 60.01A
Glass
ROCKWOOL ROCKWOOL
INSULATION INSULATION
Rubber Glass 40.02 Glass
40.04
70.06 70.06
A3 60.07 Rubber Glass 60.07

