Page 68 - ALLOY Technical Detail V.2025-2
P. 68
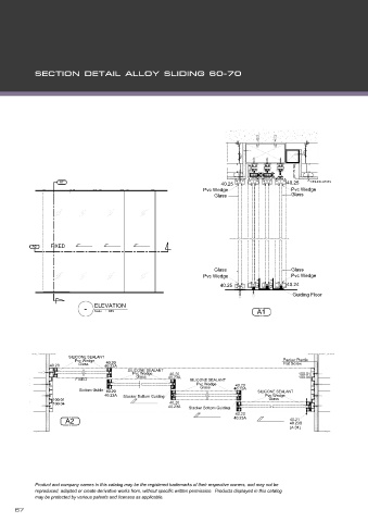
A1 40.25 40.25 CEILING LEVEL
Pvc Wedge Pvc Wedge
Glass Glass
A2 FIXED
Glass Glass
Pvc Wedge Pvc Wedge
40.25 40.24
Guiding Floor
- ELEVATION A1
Scale : NTS
SILICONE SEALANT
Pvc Wedge 40.20 Packer Plactic
40.20 Glass 40.23A Flat Screw
SILICONE SEALANT
Pvc Wedge 40.20 100.01
FIXED Glass 40.23A SILICONE SEALANT 100.04
Pvc Wedge 40.20
Glass
Bottom Guide 40.20 40.23A SILICONE SEALANT
40.23A Stacker Bottom Guiding Pvc Wedge
100.01 Glass
100.04 40.20
40.23A Stacker Bottom Guiding
40.20
A2 40.23A 40.21
40.23B
(A.01)

