Page 64 - ALLOY Technical Detail V.2025-2
P. 64
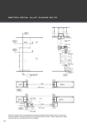
A1
CEILING LEVEL
100.02
A3 Rubber Glass
Glass
FIXED P
Rubber Glass
100.06
70.11
A4 100.14
80.10
70.03R 70.03P
70.02 70.02
VOID Rubber Glass
P
Glass
Rubber Glass
70.02 70.02
70.04
Guiding Floor
Packer Plactic
Flat Screw
- ELEVATION A1
Scale : NTS
100.02 100.02
Glass
ROCKWOOL ROCKWOOL
INSULATION INSULATION
Rubber Glass
A2
80.10 80.10
100.02 100.02
Pull Handle
ROCKWOOL VOID ROCKWOOL
INSULATION INSULATION
PLUS 01
Glass
PLUS 08.1
(A.01) (A.01)
40.08A
A3 (A.01) 70.01 Rubber Glass 70.01A
(A.14)
Pull Handle

