Page 67 - ALLOY Technical Detail V.2025-2
P. 67
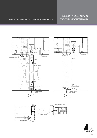
ROCKWOOL
INSULATION
ROCKWOOL
INSULATION
60-70 MM
60-70 MM CEILING LEVEL
70.11
100.02
CEILING LEVEL
SILICONE SEALANT Rubber Glass
100.01 Glass
100.04 70.04
70.02 70.02
VOID Rubber Glass
Glass
Rubber Glass
70.02 70.02
70.04 Glass
Rubber Glass
Guiding Floor
100.05
100.06
Packer Plactic Packer Plactic
Flat Screw Flat Screw
A1 A2
80.10 SILICONE SEALANT
100.03=x2 100.02
Glass ROCKWOOL
INSULATION
Rubber Glass
Rubber Glass (A.01)
70.01A

