Page 65 - ALLOY Technical Detail V.2025-2
P. 65
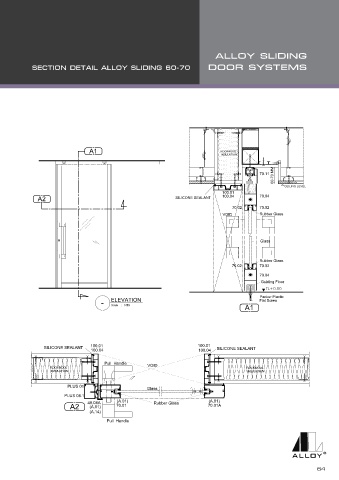
A1 ROCKWOOL
INSULATION
60-70 MM
70.11
CEILING LEVEL
100.01
A2 SILICONE SEALANT 100.04 70.04
70.02 70.02
VOID Rubber Glass
Glass
Rubber Glass
70.02 70.02
70.04
Guiding Floor
- ELEVATION Packer Plactic
Flat Screw
A1
Scale : NTS
SILICONE SEALANT 100.01 100.01 SILICONE SEALANT
100.04 100.04
Pull Handle
ROCKWOOL VOID ROCKWOOL
INSULATION INSULATION
PLUS 01 Glass
PLUS 08.1 (A.01) (A.01)
A2 40.08A 70.01 Rubber Glass 70.01A
(A.01)
(A.14)
Pull Handle

