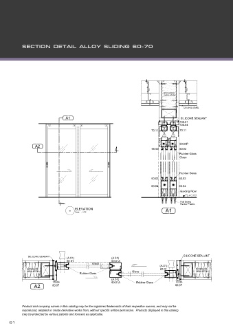
Page 62 - ALLOY Technical Detail V.2025-2
P. 62
ROCKWOOL
INSULATION
CEILING LEVEL
A1 SILICONE SEALANT
100.01
100.04
70.11 70.11
60.03R 60.03R 60.03P
A2
60.02 60.02
Rubber Glass
Glass
FH-01
FH-01
Rubber Glass
60.02 60.02
60.04 60.04
Guiding Floor
Flat Screw
Packer Plactic
- ELEVATION A1
Scale : NTS
SILICONE SEALANT SILICONE SEALANT
(A.01) (A.01)
60.01 60.01A
Glass
(A.01)
ROCKWOOL 60.01 ROCKWOOL
INSULATION Glass INSULATION
Rubber Glass
(A.01)
70.06 60.01A Rubber Glass 70.06
A2 60.07 60.07

