Page 66 - ALLOY Technical Detail V.2025-2
P. 66

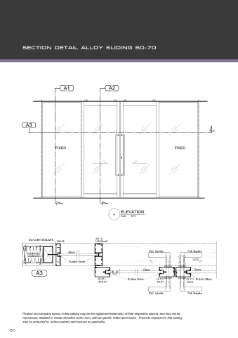
    










                                 A1                    A2










              A3





                             FIXED                                                      FIXED


















                                                          -  ELEVATION
                                                              Scale    :   NTS





                                                 80.10
               SILICONE SEALANT   100.02         100.03=x2

                                   Glass                                    Pull  Handle       Pull  Handle
               ROCKWOOL
               INSULATION
                                                                                                 VOID
                                    Rubber Glass
                   A3                                                    Glass                    Glass
                                                  (A.01)         Rubber Glass   (A.01)        (A.01) Rubber Glass
                                                  70.01A                        70.01         70.01


                                                                            Pull  Handle       Pull  Handle
   61   62   63   64   65   66   67   68   69   70   71