Page 77 - ALLOY Technical Detail V.2024_A4
P. 77
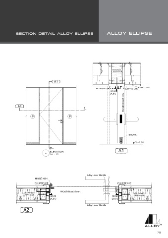
ROCKWOOL
INSULATION
A1
ELLIPSE 03E ELLIPSE 05E CEILING LEVEL
80.08
(A.01)
WOOD Door35 mm.
A4
P P
ML.01
(DS200 )
- ELEVATION A1
Scale : NTS
Alloy Lever Handle
HINGE H.01
ELLIPSE 01E ELLIPSE 01E
WOOD Door35 mm.
ROCKWOOL
INSULATION ROCKWOOL
80.08 80.08 INSULATION
(A.01) (A.01)
Alloy Lever Handle
A2

