Page 73 - ALLOY Technical Detail V.2024_A4
P. 73
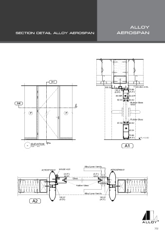
A1
100.02 CEILING LEVEL
100.07 70.06
(A.01) (A.01)
60.03R 60.03P
60.02 60.02
A4 Rubber Glass
Glass
P P
Rubber Glass
60.02 60.02
60.04
70.06
(A.01)
- ELEVATION A1
Scale : NTS
Alloy Lever Handle
AEROSPAN-01 HINGE H.01 AEROSPAN-01
(A.01) (A.01)
60.01 60.01
Glass
Rubber Glass
Alloy Lever Handle
100.07 100.07
A2 (A.01) (A.01)

