Page 68 - ALLOY Technical Detail V.2024_A4
        P. 68
         
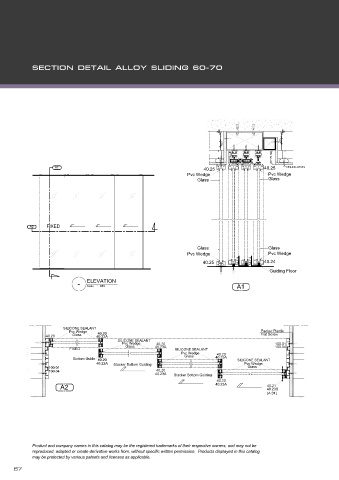
                    A1                                                   40.25                40.25  CEILING LEVEL
                                                                   Pvc Wedge                   Pvc Wedge
                                                                      Glass                    Glass
           A2    FIXED
                                                                      Glass                    Glass
                                                                   Pvc Wedge                   Pvc Wedge
                                                                        40.25                 40.24
                                                                                                Guiding Floor
                            -   ELEVATION                                           A1
                                Scale    :   NTS
                       SILICONE SEALANT
                         Pvc Wedge  40.20                                                    Packer Plactic
                 40.20    Glass    40.23A                                                    Flat Screw
                                          SILICONE SEALANT
                                            Pvc Wedge   40.20                                     100.01
                         FIXED               Glass     40.23A  SILICONE SEALANT                   100.04
                                                                 Pvc Wedge   40.20
                                                                  Glass
                           Bottom Guide  40.20                               40.23A  SILICONE SEALANT
                                   40.23A  Stacker Bottom Guiding                      Pvc Wedge
                  100.01                                                                Glass
                  100.04                                40.20
                                                       40.23A  Stacker Bottom Guiding
                                                                             40.20
                      A2                                                     40.23A            40.21
                                                                                               40.23B
                                                                                               (A.01)
     	
