Page 67 - ALLOY Technical Detail V.2024_A4
        P. 67
      
                                             
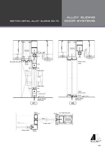
                                                                                ROCKWOOL
                                                                                 INSULATION
                             ROCKWOOL
                             INSULATION
                                                                                                 60-70 MM
                                                 60-70 MM                                            CEILING LEVEL
                                           70.11
                                                                             100.02
                                                     CEILING LEVEL
            SILICONE SEALANT                                                              Rubber Glass
                             100.01                                                       Glass
                             100.04        70.04
                                 70.02    70.02
                             VOID          Rubber Glass
                                           Glass
                                           Rubber Glass
                                 70.02    70.02
                                           70.04                                          Glass
                                                                                          Rubber Glass
                                             Guiding Floor
                                                                              100.05
                                                                                         100.06
                                            Packer Plactic                            Packer Plactic
                                            Flat Screw                                Flat Screw
                                      A1                                          A2
                                        80.10                       SILICONE SEALANT
                                        100.03=x2             100.02
                                                Glass                      ROCKWOOL
                                                                           INSULATION
                                                  Rubber Glass
                          Rubber Glass   (A.01)
                                      70.01A
     	
