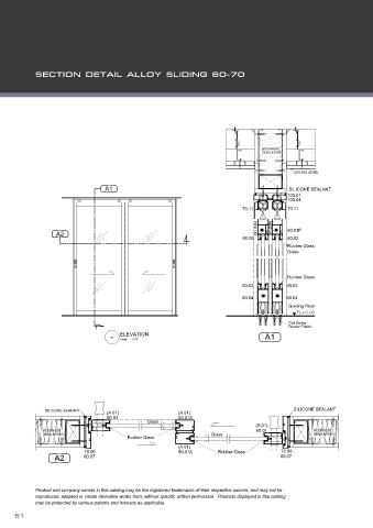
Page 62 - ALLOY Technical Detail V.2024_A4
        P. 62
         
                                                                                     ROCKWOOL
                                                                                     INSULATION
                                                                                               CEILING LEVEL
                                   A1                                                        SILICONE SEALANT
                                                                                             100.01
                                                                                             100.04
                                                                              70.11          70.11
                                                                                   60.03R  60.03R  60.03P
                   A2
                                                                              60.02          60.02
                                                                                             Rubber Glass
                                                                                             Glass
                                                        FH-01
                         FH-01
                                                                                             Rubber Glass
                                                                              60.02          60.02
                                                                              60.04          60.04
                                                                                              Guiding Floor
                                                                                             Flat Screw
                                                                                             Packer Plactic
                                    -  ELEVATION                                      A1
                                       Scale    :   NTS
               SILICONE SEALANT                                                                SILICONE SEALANT
                                   (A.01)                 (A.01)
                                   60.01                  60.01A
                                                Glass
                                                                                   (A.01)
               ROCKWOOL                                                            60.01             ROCKWOOL
               INSULATION                                           Glass                            INSULATION
                                          Rubber Glass
                                                          (A.01)
                            70.06                         60.01A       Rubber Glass        70.06
                  A2        60.07                                                          60.07
     	
