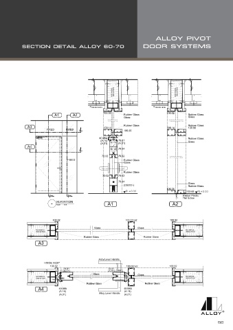
Page 59 - ALLOY Technical Detail V.2024_A4
P. 59
ROCKWOOL INSULATION ROCKWOOL INSULATION
CEILING LEVEL CEILING LEVEL
A1 A2 100.02 Rubber Glass 100.02 Rubber Glass
Glass Glass
A3 100.14 Rubber Glass 100.14 Rubber Glass
100.06
FIXED FIXED 100.06
40.08A Rubber Glass
(A.14) 70.07 Glass
(A.01) (A.01)
A4
70.04
70.02 70.02
FIXED Rubber Glass
Glass
Rubber Glass
70.02 70.02
70.04
(DS200 ) Glass
Rubber Glass
100.05
100.06
Packer Plactic
Flat Screw
- ELEVATION A1 A2
Scale : NTS
100.02 100.03=x2 100.02
Glass Glass
ROCKWOOL ROCKWOOL
INSULATION INSULATION
Rubber Glass Rubber Glass
A3
Alloy Lever Handle
HINGE H.02P
100.02 100.03=x2 100.02
70.01 70.01
(A.01) (A.01)
Glass Glass
ROCKWOOL ROCKWOOL
INSULATION INSULATION
Rubber Glass Rubber Glass
A4 40.08A 40.08A
(A.14) (A.14)
(A.01) Alloy Lever Handle (A.01)

