Page 55 - ALLOY Technical Detail V.2024_A4
P. 55
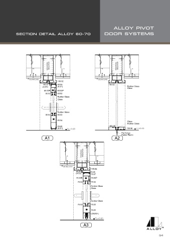
ROCKWOOL INSULATION ROCKWOOL INSULATION
CEILING LEVEL CEILING LEVEL
100.02
100.07 60.06 100.02
(A.01) (A.01) Rubber Glass
Glass
60.03R 60.03P
60.02 60.02
Rubber Glass
Glass
Rubber Glass
60.02 60.02
60.04 Glass
Rubber Glass
60.06 100.05
(A.01) 100.06
Flat Screw
Packer Plactic
A1 A2
ROCKWOOL INSULATION
CEILING LEVEL
100.02
80.08 D.05
(A.02) 70.07
70.03R 70.03P
70.02 70.02
Rubber Glass
Glass
Rubber Glass
70.02 70.02
70.04
(DS200 )
A3

