Page 54 - ALLOY Technical Detail V.2024_A4
P. 54
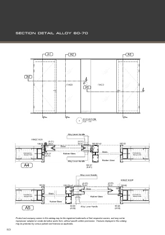
A1 A2 A3
A4
P
FIXED FIXED
A5
- ELEVATION
Scale : NTS
Alloy Lever Handle
HINGE H.01
(A.01) (A.01)
100.02 60.01 60.01 100.03=x2 100.02
Glass
Glass
ROCKWOOL 100.07 Rubber Glass ROCKWOOL
INSULATION INSULATION
(A.01)
Alloy Lever Handle Rubber Glass
A4 100.07
(A.01)
Alloy Lever Handle
HINGE H.02P
(A.01) (A.01)
100.02 100.03=x2 70.01 70.01 100.02
Glass
Glass
ROCKWOOL ROCKWOOL
INSULATION Rubber Glass INSULATION
Rubber Glass
A5 80.08 Alloy Lever Handle 80.08
(A.02)
(A.02)

