Page 57 - ALLOY Technical Detail V.2024_A4
P. 57
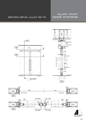
ROCKWOOL INSULATION
CEILING LEVEL
A1
100.02 Rubber Glass
Glass
80.10 Rubber Glass
100.14
A2 FIXED 100.06
60.04
A3 60.02 60.02
Rubber Glass
Glass
Rubber Glass
60.02 60.02
60.04
- ELEVATION
Scale : NTS
A1
100.02 100.02
Glass Glass
ROCKWOOL ROCKWOOL
INSULATION INSULATION
Rubber Glass Rubber Glass
A2
60.01 Pull Handle Pull Handle 60.01
100.02 (A.01) 100.02
80.10 (A.01) 80.10
60.01 60.01
(A.01) (A.01)
ROCKWOOL ROCKWOOL
INSULATION INSULATION
A3
Pull Handle Pull Handle

