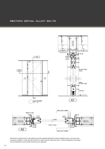
Page 52 - ALLOY Technical Detail V.2024_A4
P. 52
ROCKWOOL INSULATION
CEILING LEVEL
100.02
A1 40.08A
(A.01) 70.06
(A.14) (A.01)
70.04
70.02 70.02
Rubber Glass
A2 Glass
P P
Glass
Rubber Glass
70.02 70.02
70.04
(DS200 )
- ELEVATION A1
Scale : NTS
Alloy Lever Handle
HINGE H.02P
100.02 100.02
(A.01) (A.01)
70.01 70.01
Glass
ROCKWOOL ROCKWOOL
INSULATION INSULATION
40.08A Rubber Glass 40.08A
(A.01) (A.01)
(A.14) (A.14)
A2
Alloy Lever Handle

