Page 56 - ALLOY Technical Detail V.2024_A4
P. 56
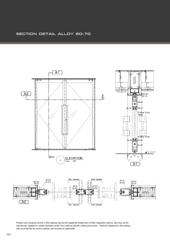
A1
ROCKWOOL INSULATION
A2 CEILING LEVEL 100.02
80.10
60.04
60.02 60.02
Rubber Glass
Glass
Rubber Glass
60.02 60.02
60.04
- ELEVATION
Scale : NTS
A1
60.01 Pull Handle Pull Handle 60.01
100.02 (A.01) (A.01) 100.02
80.10 80.10
60.01 60.01
(A.01) (A.01)
ROCKWOOL ROCKWOOL
INSULATION INSULATION
A2
Pull Handle Pull Handle

