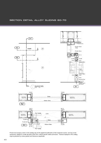
Page 64 - ALLOY Technical Detail V.2024_A4
        P. 64
         
                                    A1
                                                                                             CEILING LEVEL
                                                                                100.02
                    A3                                                                    Rubber Glass
                                                                                          Glass
                                  FIXED            P
                                                                                          Rubber Glass
                                                                                100.06
                                                                                              70.11
                    A4                                                           100.14
                                                                                 80.10
                                                                                     70.03R   70.03P
                                                                                      70.02   70.02
                                                                                  VOID        Rubber Glass
                                                   P
                                                                                              Glass
                                                                                              Rubber Glass
                                                                                      70.02   70.02
                                                                                              70.04
                                                                                               Guiding Floor
                                                                                              Packer Plactic
                                                                                              Flat Screw
                                       -  ELEVATION                                      A1
                                          Scale    :   NTS
                                   100.02                                100.02
                                                         Glass
                          ROCKWOOL                                                 ROCKWOOL
                           INSULATION                                               INSULATION
                                                     Rubber Glass
                          A2
                                    80.10                                80.10
                                   100.02                                100.02
                                          Pull  Handle
                          ROCKWOOL                     VOID                       ROCKWOOL
                          INSULATION                                              INSULATION
                            PLUS 01
                                                         Glass
                           PLUS 08.1
                                             (A.01)                      (A.01)
                                   40.08A
                            A3     (A.01)   70.01     Rubber Glass       70.01A
                                   (A.14)
                                          Pull  Handle
     	
