Page 63 - ALLOY Technical Detail V.2024_A4
        P. 63
      
                                             
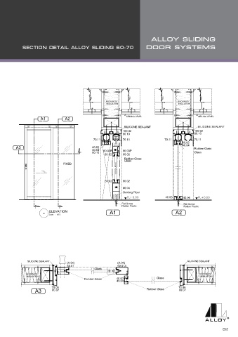
                                                      ROCKWOOL                            ROCKWOOL
                                                      INSULATION                          INSULATION
                     A1           A2                            CEILING LEVEL                       CEILING LEVEL
                                                               SILICONE SEALANT                     SILICONE SEALANT
                                                              100.02                              100.02
                                                              80.10                               80.10
                                                70.11         70.11                70.11          70.11
                                                                                            40.02
         A3                                    40.02                                        40.04  Rubber Glass
                                               40.04  60.03R  60.03P
                                               80.10                                              Glass
                                                     60.02    60.02
                                                               Rubber Glass
                                                               Glass
                                 FIXED
              FH-01
                                                     60.02    60.02
                                                              60.04
                                                              Guiding Floor
                                                                                    40.05    40.06
                                                              Flat Screw                     Flat Screw
                                                              Packer Plactic                 Packer Plactic
                       -  ELEVATION                     A1                               A2
                          Scale    :   NTS
               SILICONE SEALANT    (A.01)                   (A.01)                             SILICONE SEALANT
                                   60.01                    60.01A
                                                Glass
              ROCKWOOL                                                                               ROCKWOOL
              INSULATION                                                                             INSULATION
                                           Rubber Glass    40.02               Glass
                                                           40.04
                           70.06                                                          70.06
                   A3      60.07                                          Rubber Glass     60.07
     	
