Page 65 - ALLOY Technical Detail V.2024_A4
        P. 65
      
                                             
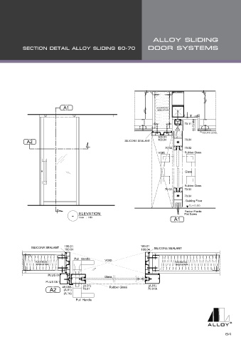
                                A1                                            ROCKWOOL
                                                                               INSULATION
                                                                                                 60-70 MM
                                                                                            70.11
                                                                                                     CEILING LEVEL
                                                                               100.01
              A2                                               SILICONE SEALANT   100.04    70.04
                                                                                   70.02    70.02
                                                                               VOID         Rubber Glass
                                                                                            Glass
                                                                                            Rubber Glass
                                                                                  70.02     70.02
                                                                                            70.04
                                                                                             Guiding Floor
                                     -  ELEVATION                                           Packer Plactic
                                                                                            Flat Screw
                                                                                       A1
                                        Scale    :   NTS
                SILICONE SEALANT   100.01                             100.01  SILICONE SEALANT
                                 100.04                                100.04
                                      Pull  Handle
                   ROCKWOOL                          VOID                               ROCKWOOL
                   INSULATION                                                           INSULATION
                         PLUS 01                     Glass
                        PLUS 08.1         (A.01)                          (A.01)
                          A2    40.08A    70.01        Rubber Glass       70.01A
                                (A.01)
                                (A.14)
                                       Pull  Handle
     	
