Page 22 - 10 Sleepy Hollow
P. 22

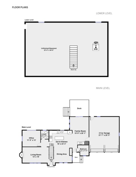
FLOOR PLANS

                                                                                        LOWER LEVEL








































                                                                                        MAIN LEVEL
   17   18   19   20   21   22   23   24   25   26   27