Page 21 - 289 Fair Oak Drive Brochure
P. 21

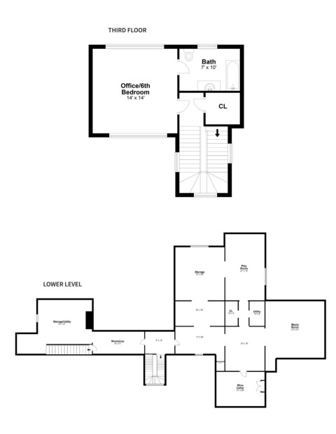
THIRD FLOOR
























































                 LOWER LEVEL
   16   17   18   19   20   21   22   23   24   25   26