Page 1572 - Draft
P. 1572
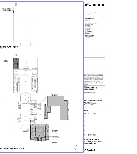
MATCHLINE
ROOF REPLACEMENT D
INCLUDING SOME MEP ON ROOF
B DRAWINGS FOR FURTHER
- SEE MEP & ROOFING
INFORMATION
PARAPET REPLACEMENT AT
NEW ENTRANCE - SEE ARCHITECTS:
ROOFING DRAWINGS FOR
STR Partners LLC
FURTHER INFORMATION
350 West Ontario Street | Suite 200
Chicago, IL 60654
T: 312.464.1444
www.strpartners.com
C • CIVIL ENGINEERING:
ERIKKSON ENGINEERING
145 Commerce Dr, Suite A
Grayslake, IL 60030
(847) 223-4804
• ROOFING AND BUILDING ENVELOPE:
STR-SEG
2015 S. Arlington Heights Road, Suite 108
Arlington Heights, IL 60005
(847) 952-9668
• STRUCTURAL ENGINEERING:
CEA&A STRUCTURAL ENGINEERS
175 N. Franklin Street Suite 410
Chicago, IL 60606
(312) 750-1701
• MEP/FP ENGINEERING:
CS2 DESIGN GROUP
837 Oakton Street
Elk Grove Village, IL 60007
(847) 981-1800
A • CONSTRUCTION MANAGER:
PEPPER CONSTRUCTION
643 North Orleans Street
Chicago, IL 50554
(312) 266-4700
MATCHLINE
COMPOSITE PLAN - ROOF COMPOSITE PLAN - ROOF
3 4
SCALE: 1" = 40' SCALE: 1" = 40'
D
KE Y P L A N
CHILD DEV.
SENSORY AREA
100S
INTERIOR
RENOVATION NORTH FITNESS
VEST. RECPT. 100Y OBS GYM 100B CENTER 100C
100Z 100X
CHILD DEV. STOR.
CLASSROOM 100W
100A
OBS
100V
TOIL.
100U
TOIL.
100T
AUTO
SHOP CHEER / DANCE
GYMNASIUM STORAGE
DRIVERS 100L 100B
EDUCATION
100
TRAINING SC O P E D O C U M E N T
100B
This drawing is one drawing within a complete set of documents and shall not
be considered separately from the Drawings as a whole. The Drawings
OFFICE
100D indicate the general scope of the project in terms of architectural design
STOR concept, the dimensions of the building, the major architectural elements and
LOCKER 100N
RM
100E the type of structural, mechanical, and electrical systems. As Scope
Documents, the Drawings do not necessarily indicate or describe all work
required for full performance and completion of the requirements of the
Construction Documents. On the basis of the general scope indicated or
described, the Contractor shall furnish all items required for the proper
execution and completion of the Work.
TOILETS
MAIN Copyright Notice, Copyright © 2019 STR PARTNERS LLC
GYM STORAGE
100K The information in this document is the intellectual property of STR Partners
LLC. It is intended solely for use by the “Client” during only this specific
JC project. Reproduction of any portion of this document for any purpose other
DRYING
BOYS AREA than for its intended use is not permitted without specific written permission of
LOCKER RM
100G STR Partners LLC.
GIRLS SHOWERS
LOCKER ROOM PR O J E C T
100N
D227 SUMMER 2021
LOCKERS
100I RENOVATIONS
3600 W. 203rd St.
OFFICE
100J LOCKER
OFFICE RM
100P 100Q Olympia Fields, IL 60461
UNIT VENTILATOR STOR 101B DRESS 101C
MEP WORK IN
REPLACEMENT CRAWL SPACE - SEE
STAGE MEP DRAWINGS
101A
V V MECHANICAL 108
INTERIOR
B 101
RENOVATION AUTO SHOP 379 GEN ED 365 GEN ED 364 GEN ED 363 GEN ED 362 GEN ED 361 THEATER LITTLE
308 CORR CORR 308 AD OFFICE RICH TOWNSHIP HIGH SCHOOL
PHYSICS / SCIENCE BOILER ROOM 109
CHEM STORAGE BIOLOGY DISTRICT 227
EQUIP. STAIR 5 390 391 384 ELEC
CONF MECH 208B STAIR 18 OFFICE 366 STAIR V JAN CTRL 101D STAIR
168 A114 SP ED GEN ED COMPUTERS GEN ED GEN ED 20550 South Cicero Avenue
MANUFACTURING LAB SCIENCE OFFICE GEN ED OFFICES 369F BOYS
OFF. WMN 389 MEN 383 382 367 360 359
208A 208 TLT CAREER CTR 369E Matteson, IL 60443
MAINT 328A OFFICE
IT JAN
DIRECTOR
PRINCIPAL STOR OFFICE GIRLS
166 167 412 MDF OFFICE STOR CL I E N T P R O J E C T N U M B E R
VAULT PHYSICS / PHYSICS / PHYSICS / IT OFFICE 413 369D MEDIA CENTER SP ED
A116 CORR. 211 CHEM CHEM CHEM BIOLOGY 385 414 369 357 WMN TLT MEN TLT SERVE
MEN 388 387 386 GEN ED MAINTENANCE
SECRETARY 368 GEN ED 110
165 A117 STOR. IDF MECH STOR KITCHEN
207A 206 412 369C 358 STOR ST R P R O J E C T N U M B E R
WMN
CORR KITCHEN
1 A118 CORR. COMPUTER C C 20046
CONF 212 COMPUTER LARGE GROUP LARGE GROUP IT OFFICE DISH
164 ENGINEERING LAB LAB INSTRUCT. INSTRUCT. CORR. CORR
207 205 203 201 300 400 COMPUTER
210 HEALTH LAB LAB
MAIL CORR SERVICES 408 STOR 369B 355 356 DR A W I N G D A T E S
ASSOC 204 A 300 GEN ED SERVE
PRINCIPAL 370 LIBRARIAN
163 369A NUMBER DATE COMMENTS
SP ED SP ED SP ED SP ED
307 306 305 304
CASHIER MECHANICAL
161 CORR. FLOOR STOR STAFF 106
209 MEN JAN STOR CAFETERIA •
RECEPTION TLT ABOVE 102A
160 FACULTY SP ED STORAGE A/V CRAWL SPACE
GEN ED GEN ED LARGE GROUP GEN ED GEN ED GEN ED WMN GEN ED 404 SCIENCE 405 GEN ED 346 FOREIGN GEN ED GEN ED STUDENT •
INSTRUCT.
159 204 202 200 301 302 303 344 LANGUAGE OFFICE SPEECH SOC WKR 349 OPEN 350 352 354 STAIR CAFETERIA 102
348
347 •
TEACHER
UPPER LEVEL CORR SUPPLY •
CORR 308
101
COMMON SPACE •
VEST VEST OFFICE 345A OFFICE 345 JAN FACULTY MEN FACULTY WMN
ELEV GEN ED
POLICE LANG ARTS MECHANICAL •
LIASON 323 GEN ED BOOKSTORE 127
STOR ISS / FILES 141 ATTEND CLERK EXAM MEN TLT WMN TLT OFFICE 351 353 112 STOR
PPS 158 LG MTG RM 143 ATTEND 140 RM OFFICE OFFICE OFFICE OFFICE COPY / •
RECEPT FAC CORR A150 TLT 345B 345C 345D 351 A WORK RM
157 144 142 4 A149 ELEV 113A STOR W W
ELEC RM
156 CONF A148 DW •
139 NURSE TEACHER WORKROOM
324A
SP ED IDF SP ED WMN MEN 133 CAREER STAIR 25 KITCHENETTE 324 STAIR CORR
CONF 155 WORK AREA COORD TLT TLT PREP/ STOR CENTER 23 •
153 149 MEDS 131 OFFICE 127 STAIR STAIR
JAN 147 WMN MEN STOR A151 129
154 TLT TLT 138 STUDY P.E. BOOK •
RENOVATION
DEAN SP ED 325 GEN ED 340 INTERIOR HALL 114 STOR 114A GEN ED
SOC PSYCH SP ED DEAN DEAN DEAN RECEPTION GUID. GUID. GUID. GUID. GUID. GUID. 126 •
WKR OFFICE WK OFFICE OFFICE OFFICE REGIST. OFFICE OFFICE OFFICE OFFICE OFFICE OFFICE ART GEN ED
152 151 COORD 150 146 145 137 136 135 134 132 130 128 OFFICE
148 A OFF. OFF. CORR A 115 114B 125 •
GATHERING
OFF.
CORR 324C TEACHER 324F 309 •
GEN ED 309 GEN ED 324D 324B 324G OFF. GEN ED UNIT VENTILATOR GEN ED GEN ED UNIT VENTILATOR
327 328 338 116 124 REPLACEMENT
OFF. OFF. UNIT VENTILATOR REPLACEMENT STOR CORR CORR GEN ED 123 •
324E 324H OFFICE
REPLACEMENT OFFICE • • 3 MAR. 17, 2021 ISSUE FOR BID & PERMIT
UNIT VENTILATOR GEN ED GEN ED GEN ED STOR
REPLACEMENT 329 330 335 GEN ED GEN ED
118 122 • • 2 MAR. 15, 2021 100% REVIEW
ART
LAB GEN ED • 1 FEB. 8, 2021 75% REVIEW
334-336 117 121
CORR 309 CORR
FINISH UPGRADES FINISH UPGRADES
(CORRIDOR & STAIRS) GEN ED 331 JAN JAN (CORRIDOR & STAIRS)
332J WMN 119C DR A W I N G T IT L E
MEN 333W BOYS GIRLS
GEN ED 332M GEN ED DARK 119A 119B OFFICE MATH CENTRAL CAMPUS
332 STAIR 333 ROOM 120
2 IN 24 119 STAIR
INTERIOR INTERIOR STEM(CE) COMPOSITE
RENOVATION
RENOVATION
FLOOR PLANS
Actual size to read at scale 1 IN COMPOSITE PLAN- SECOND FLOOR COMPOSITE PLAN - FIRST FLOOR N SH E E T N U M B E R
0 IN 2 SCALE: 1" = 40' 1 SCALE: 1" = 40' CE-A0.0

