Page 97 - 2019종합카다로그_Temperature & Switch
P. 97

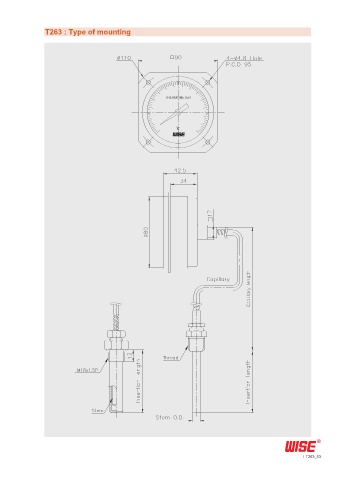
T263 : Type of mounting

















































































                                                                                                T263_03
   92   93   94   95   96   97   98   99   100   101   102