Page 131 - سابقة أعمال ايجي ريفيت السكني
P. 131
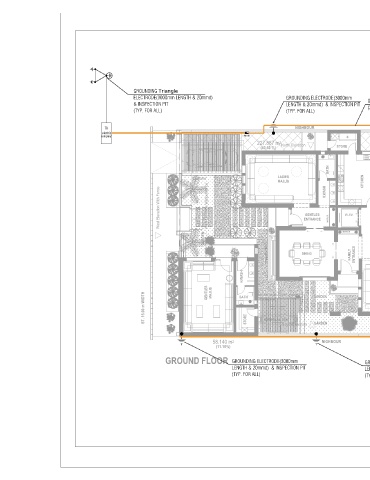
EARTHING LEGEND :
GROUNDING ELECTRODE
(3000mm LENGTH & 20mmd)
& INSPECTION PIT
GROUNDING Triangle
ELECTRODE(3000mm LENGTH & 20mmd)
INSPECTION PIT
GROUNDING/COPPER/
Earthing cable (25mmmd)
& non isolated
GROUNDING Triangle
ELECTRODE(3000mm LENGTH & 20mmd) GROUNDING ELECTRODE(3000mm GROUNDING ELECTRODE(3000mm
& INSPECTION PIT LENGTH & 20mmd) & INSPECTION PIT GROUNDING/COPPER/ Earthing cable LENGTH & 20mmd) & INSPECTION PIT
(TYP. FOR ALL) (TYP. FOR ALL) (25mmmd) & non isolated (TYP. FOR ALL)
TR NIGHBOUR
electric
company MDB
227.887 m 2 North Elevation
(43.60 %) STORE
BATH
GARDEN LADIES H.WASH KITCHEN GUEST ROOM N GROUNDING/COPPER/ Earthing cable
MAJLIS
(25mmmd) & non isolated
West Elevation With Fence GARDEN West Elevation Without fence ENTRANCE MIRROR ELEV. 26 DOWN DOWN 25 25 24 24 23 23 25R x 0.16 22 22 21 21 20 20 19 19 18 18 17 17 16 16 15 15 14 14 13 13
GENTLES
25R x 0.16
24G x 0.28
10
5
WALL WATERFALL DINING MIRROR FAMILY ENTRANCE 1 UP UP 2 3 4 24G x 0.28 6 7 8 9 BATH 11 12 GROUNDING ELECTRODE(3000mm
LENGTH & 20mmd) & INSPECTION PIT
TV 70" NIGHBOUR (TYP. FOR ALL)
H.WASH FAMILY LIVING
ST. 16.00 m WIDTH GENTLES MAJLIS BATH STORE EXTERNAL SEAT GARDEN
South Elevation
GARDEN
58.140 m 2 NIGHBOUR
(11.10%)
GROUND FLOOR GROUNDING ELECTRODE(3000mm GROUNDING ELECTRODE(3000mm GROUNDING ELECTRODE(3000mm
LENGTH & 20mmd) & INSPECTION PIT LENGTH & 20mmd) & INSPECTION PIT LENGTH & 20mmd) & INSPECTION PIT
(TYP. FOR ALL) (TYP. FOR ALL) (TYP. FOR ALL)
A 3
E 0 1 3

