Page 128 - سابقة أعمال ايجي ريفيت السكني
P. 128
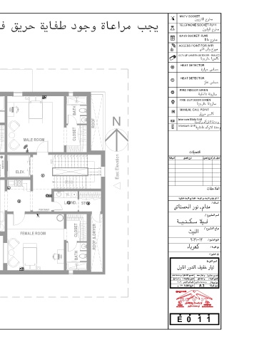
MATV SOCKET
TELEPHONE SOCKET-RJ11
DATA SOCKET -RJ45
ACCESS POINT FOR WIFI
CCTV (IP CAMERA OUTDOOR - BULLET)
HEAT DETECTOR
H
248.160 m 2 G HEAT DETECTOR
(47.72 %) North Elevation
FIRE INDOOR SIREN
FIRE OUTDOOR SIREN
out
MASTER MIRROR BATH MANUAL CALL POINT
BED ROOM MAKEUP BATH Intercom Main Unit
ROOF N Intercom Unit
CLOSET
West Elevation With Fence West Elevation Without fence TV 55" PORTRAIT MIRROR MALE ROOM DOWN 25 24 23 22 21 20 19 18 17 16 15 14 East Elevation
CLOSET
ENTRANCE
SHOES STO.
ELEV.
OFFICE
S
PRIVATE SEAT
25R x 0.16 13 12
TV 50" 24G x 0.28
UP
G 1 2 3 4 5 6 7 8 9 10 11
FAMILY LIVING LAUND. STO. H
CHILD H W D
H
BED ROOM PORTRAIT
BATH
CLOSET
FEMALE ROOM ROOF & DRYER
BATH
South Elevation A 3
FIRST FLOOR
E 0 1 1

