Page 125 - سابقة أعمال ايجي ريفيت السكني
P. 125
MATV SOCKET
TELEPHONE SOCKET-RJ11
DATA SOCKET -RJ45
ACCESS POINT FOR WIFI
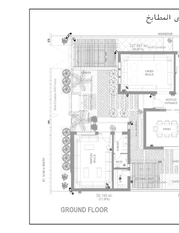
NIGHBOUR
CCTV (IP CAMERA OUTDOOR - BULLET)
227.887 m 2 North Elevation H out H HEAT DETECTOR
(43.60 %) STORE
HEAT DETECTOR
G
FIRE INDOOR SIREN
BATH FIRE OUTDOOR SIREN
LADIES N out
GARDEN KITCHEN H
MAJLIS H.WASH GUEST ROOM Intercom Main Unit
MANUAL CALL POINT
West Elevation With Fence West Elevation Without fence out ENTRANCE MIRROR ELEV. G 26 DOWN DOWN 25 25 24 24 23 23 22 22 21 21 20 20 19 19 18 18 17 17 16 16 15 15 East Elevation Intercom Unit
GENTLES
MIRROR S UP UP 25R x 0.16 14 14 13 13
25R x 0.16
24G x 0.28
GARDEN 1 2 3 4 5 6 7 8 9 10 11 12
24G x 0.28
WALL WATERFALL DINING FAMILY ENTRANCE TV 70" BATH
H.WASH FAMILY LIVING NIGHBOUR
ST. 16.00 m WIDTH GENTLES MAJLIS BATH GARDEN
STORE
H
South Elevation
out EXTERNAL SEAT GARDEN out
58.140 m 2 NIGHBOUR A 3
(11.10%)
GROUND FLOOR
E 0 1 0

