Page 124 - سابقة أعمال ايجي ريفيت السكني
P. 124
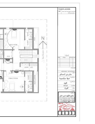
POWER LEGEND :
1Ø/240V, 50HZ, SP+N FUSED ISOLATING SWITCH.
248.160 m 2
(47.72 %) North Elevation
MASTER MIRROR BATH
BED ROOM MAKEUP BATH
ROOF N
CLOSET
West Elevation With Fence West Elevation Without fence TV 55" F- ACU/5 PORTRAIT MIRROR MALE ROOM DOWN 25 24 23 22 21 20 19 18 17 16 15 14 East Elevation
CLOSET
F- ACU/4
F- ACU/1
F- ACU/8
ENTRANCE
SHOES STO.
ELEV.
F- ACU/6
OFFICE
PRIVATE SEAT
25R x 0.16 13 12
TV 50" UP 24G x 0.28
F- ACU/2 1 2 3 4 5 6 7 8 9 10 11
F- ACU/9 W D
CHILD
BED ROOM FAMILY LIVING LAUND. STO.
F- ACU/7 PORTRAIT
BATH F- ACU/3
CLOSET
FEMALE ROOM ROOF & DRYER
BATH
South Elevation
A 3
FIRST FLOOR
E 0 0 9

