Page 177 - سابقة أعمال ايجي ريفيت السكني
P. 177

780

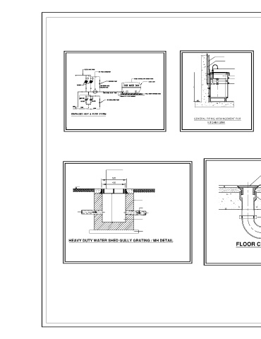
                                                                                   GENERAL PIPING ARRANGEMENT
                                                                                     FOR FLUSH TANK
                                               GENERAL PIPING ARRANGEMENT FOR        TYPE WATER CLOSET
                                                  KITCHEN SINK
                                                                    HOSE BIBB DETAIL




                           525
                           430






                 HEAVY DUTY WATER SHED GULLY GRATING / MH DETAIL
                                                        FLOOR CLEAN-OUT



                                                                                                             A 3



                                                                                                       P L  0   1  4
   172   173   174   175   176   177   178   179   180   181   182