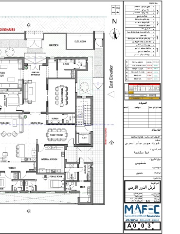
Page 232 - سابقة أعمال ايجي ريفيت السكني
P. 232
N
A
PROPERTY BOUNDARIES
ELEC. ROOM
GARDEN
H.WASH CAR PORT 2R x 0.15 UP 1G x 0.90 1 2
RECPETION GENTLES DOWN H.WASH BATH 1 2 3 TOTAL AREA 1222.93 m2 PERCENTAGE
462.87 m 2
(37.85%)
GROUND FLOOR
MAJLIS
(36.68 %)
FIRST FLOOR
448.63 m 2
GENTLES GENTLES 4 SECOND FLOOR 448.63 m 2 (36.68 %)
BATH
MAJLIS ENTRANCE UP 1 East Elevation 5 6 MASHAB 55.93 m 2 (7.84 %)
95.94 m 2
MASHAB
(4.57 %)
2R x 0.15 1G x 1.00 DOWN 2
GARDEN GUEST ROOM GUEST DINING 12 13
PROPERTY BOUNDARIES 25R x 0.16 24G x 0.28 11 10 9 8 7 6 14 15 16 17 18 19 20
GARDEN
BATH
H.WASH
3 5 4 21 22 23
MEDIA SEAT DISTR. HALL 2 24
1
UP 25
OFFICE DOWN
PROPERTY BOUNDARIES
FAMILY DINING
ELEV.
2
1
B B
GARDEN UP 1G x 1.00 DOWN
2R x 0.15
FAMILY
MAJLIS
2R x 0.15 UP 1G x 0.30 DOWN 1 2 UP 1 INTERNAL KITCHEN
2R x 0.15 1G x 0.30 DOWN 2
PORCH LAUNDARY
DOWN 2 W
UP 2R x 0.15 1G x 0.30 1 FEMALE ROOM STORE
H.WASH MASTER
STORE EXTERNAL KITCHEN BED ROOM MALE ROOM BATH BATH BATH MAID
BATH
BATH
CLOSET
A 3
GROUND FLOOR
South Elevation A
A 0 0 3

