Page 235 - سابقة أعمال ايجي ريفيت السكني
P. 235
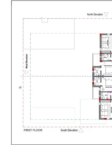
North Elevation A
N
1 TOTAL AREA 1222.93 m2 PERCENTAGE
KIDS ROOM LIVING DIRTY KITCHEN STORE GENTLES MAJLIS East Elevation 5 6 2 3 4 SECOND FLOOR 462.87 m 2 (37.85%)
GROUND FLOOR
(36.68 %)
448.63 m 2
FIRST FLOOR
448.63 m 2
(36.68 %)
95.94 m 2
MASHAB
(7.84 %)
MASHAB
(4.57 %)
55.93 m 2
West Elevation MASTER BED ROOM ENTRANCE ENTRANCE H.WASH BATH 12 11 10 13 14 15
BATH
BATH DINING 25R x 0.16 24G x 0.28 9 8 7 6 5 4 16 17 18 19 20 21
3 22 23
2 24
1
UP 25 DOWN
DIST.
BATH
DINING ELEV.
B MASTER BED ROOM H.WASH B
ENTRANCE ENTRANCE
BATH
BATH
KIDS ROOM LIVING DIRTY KITCHEN STORE GENTLES MAJLIS
A 3
FIRST FLOOR South Elevation A
A 0 0 5

