Page 239 - سابقة أعمال ايجي ريفيت السكني
P. 239
A
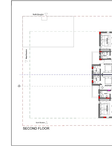
North Elevation
N
KIDS ROOM LIVING DIRTY KITCHEN STORE GENTLES MAJLIS East Elevation 1 2 3 4 SECOND FLOOR 1222.93 m2 PERCENTAGE
TOTAL AREA
(37.85%)
GROUND FLOOR 462.87 m 2
(36.68 %)
448.63 m 2
FIRST FLOOR
448.63 m 2
(36.68 %)
95.94 m 2
West Elevation BATH ENTRANCE ENTRANCE BATH 5 6 MASHAB 55.93 m 2 (7.84 %)
MASHAB
(4.57 %)
MASTER BED ROOM H.WASH 12 11 10 13 14 15 16
DINING 9 8 17 18
BATH 25R x 0.16 24G x 0.28 7 6 5 4 19 20 21
3 22 23
DIST. 1 2 24
UP 25 DOWN
BATH
DINING ELEV.
B MASTER BED ROOM H.WASH B
ENTRANCE ENTRANCE
BATH
BATH
KIDS ROOM LIVING DIRTY KITCHEN STORE GENTLES MAJLIS
South Elevation
A 3
SECOND FLOOR A
A 0 0 7

